Продаж Таунхаусів у Вінниці
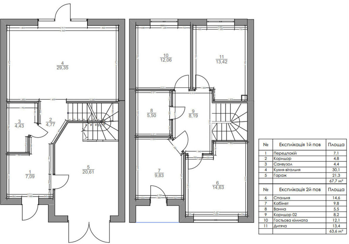
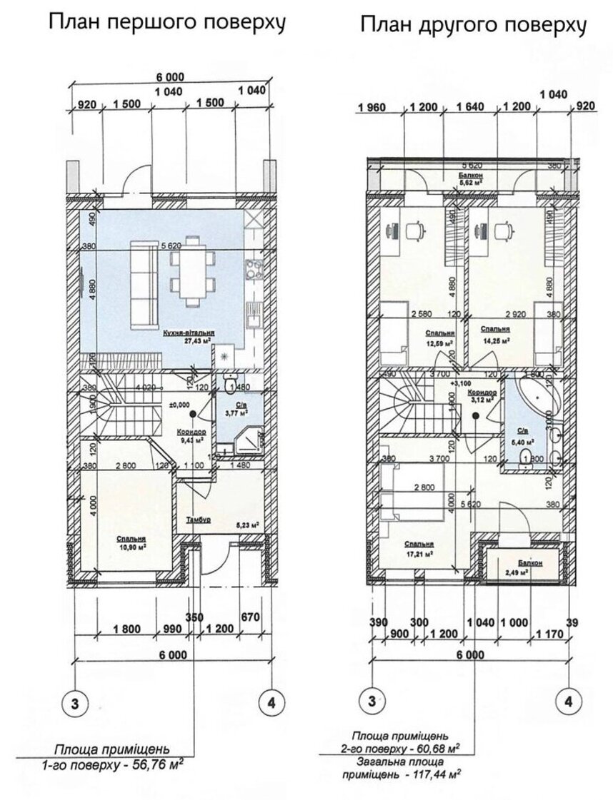
Продаж 2 поверхового таунхауса з ділянкою на 1.2 сотки, 112 кв. м, вул. Лесі Українки (№ 22-425-738)
Мрієте про просторе житло, як у приватному будинку, але щоб усе було під боком — школа, магазини, транспорт? Таунхаус у Вінниці стануть саме тим компромісом, що треба. Це поєднання затишку заміського життя та зручностей великого міста. Власний вхід, кілька поверхів, своє подвір'я чи тераса — і головне, жодних сусідів над головою. Ми зібрали актуальні пропозиції з продажу таунхаусів у Вінниці, як від забудовника, так і на вторинному ринку.
Чому варто купити таун у Вінниці?
Вінниця — комфортне та спокійне місто для життя, де не доводиться жити в шаленому ритмі мегаполісу. Саме тут усе більше людей обирають таунхауси замість звичних квартир.
Простір і тиша. Маєте два або три поверхи, окремий вхід, невелике подвір'я — майже як приватний будинок, тільки в місті або зовсім поруч.
Розумне планування. Нові проєкти зазвичай включають кухню-студію, кілька санвузлів, кімнати для дітей або домашнього офісу — все продумано до дрібниць.
Жодних сусідів зверху. Ніхто не ходить над головою вночі, не гримить меблями — а тиша, погодьтеся, іноді безцінна.
Ціна приємніша, ніж у котеджів. Таунхауси зазвичай дешевші, ніж окремі будинки з аналогічною площею. А комфорт — той самий.
На що звернути увагу при покупці таунхауса
Купівля житла — справа серйозна. Щоб не пожалкувати потім, варто врахувати кілька важливих моментів:
- Місце розташування. Дивіться, щоб поруч були школа, магазини та транспорт, щоб усе було «під рукою».
- Документи. Не полінуйтеся звірити всі документи: право власності, статус землі, дозволи на будівництво.
- Комунікації. З'ясуйте, яке опалення, чи є вода, каналізація, інтернет.
- Якість будівництва. Дивіться не лише на фасад — запитайте про матеріали стін, утеплення, чи є тепла підлога чи хоча б чорнова обробка.
- Фінанси. Уточніть, чи є можливість купити в розстрочку або оформити іпотеку. Деякі забудовники пропонують вигідні умови.
Потрібна допомога з вибором?
Не знаєте, з чого почати? Фахівці агентства нерухомості Елемент допоможуть вам підібрати найкращий варіант — під ваші потреби, бюджет і побажання. Ми супроводимо вас на всіх етапах: від першої зустрічі до укладення угоди.

















































































































