Продаж 1к квартири 44 кв. м на вул. Райдужна, ЖК Західний (№ 213-136-707)

Ціна: 43 000 $
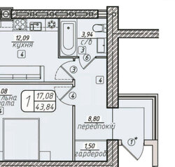
Характеристики
Ціна: | 43 000 $ |
---|---|
№ об'єкта: | 213-136-707 |
Кімнат: | 1 |
Поверх: | 2 / 6 |
Площа: | 44 / - / - м2 |
Тип стін: | Цегла |
Тип опалення: | АГВ |
Тип об'єкта: | Квартира |
Додатково: | новобудова |
Адреса: Вінницька, Вінниця, Ленінський, Барське шосе, Райдужна, 102
Продається простора 1-кімнатна квартира в абсолютно новому житловому комплексі, який вже повністю облагороджений та заселений. Це не просто квартира це шанс почати новий етап у комфортному та затишному середовищі!