Продаж 1к квартири 46.32 кв. м., ЖК Родинний Маєток  (№ 213-038-692)

Продаж 1к квартири 46.32 кв. м., ЖК Родинний Маєток фото 1

Ціна: 62 532 $

Характеристики

Ціна: 62 532 $
№ об'єкта: 213-038-692
Кімнат: 1
Поверх: 8 / 8
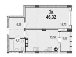
Площа: 46 / 18 / 13 м2
Тип стін: Цегла
Тип опалення: АГВ
Тип об'єкта: Квартира
Додатково: новобудова

Адреса: Вінницька, Вінниця, Ленінський, Центр, Івана Богуна, 27А

Продаж 1-кімнатної квартири від власника загальною площею 46, 32 кв.м в ЖК Родинний маєток. Є можливість придбати двокімнатну квартиру поруч та обєднати. Є можливість придбати паркомісце на підземному паркінгу. З вікон квартири відкривається неймовірний краєвид на місто. Кімната та кухня - вид на Південний Буг. На даному етапі ви можете скорегувати планування вашої квартири на свій смак. Не кутова.

Об'єкт на карті

Замовити зворотній дзвінок