Продаж 2к квартири 59.1 кв. м на вул. Болгарська (№ 212-972-580)

Ціна: 107 000 $
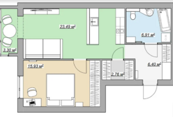
Характеристики
Ціна: | 107 000 $ |
---|---|
№ об'єкта: | 212-972-580 |
Кімнат: | 2 |
Поверх: | 3 / 4 |
Площа: | 59 / 16 / 27 м2 |
Тип стін: | Цегла |
Тип опалення: | АГВ |
Тип об'єкта: | Квартира |
Адреса: Вінницька, Вінниця, Ленінський, Слов'янка, Болгарська, 16
Квартира із новим якісним ремонтом в будинку, що здався в 2023 році - всі нові комунікації. Дизайн проект ремонту, схеми виконання робіт з електропостачання та водопостачання. Вся нова техніка. Якісні матеріали. Деревяні меблі із масиву ясеня.