Продаж 3 поверхового будинку з ділянкою на 3 сотки, 150 кв. м, вул. Подільська (№ 22-436-483)
Ціна: 160 000 $

Характеристики
| Ціна: | 160 000 $ |
|---|---|
| № об'єкта: | 22-436-483 |
| Тип: | будинок |
| Поверхів: | 3 |
| Спалень: | 3 |
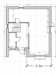
| Площа будинку: | 150 м2 |
| Ділянка: | 3 сот |
| Тип стін: | Цегла |
Адреса: Вінницька, Вінниця, Ленінський, Пирогово, Подільська, 70Б
Продаж будинка на березі Вишневського озера! Новобудова! Перстижний район, 500м від проспекта Юність.
Всі комунікації, побудований з цегли, жалізобетонне перекриття, 115м/кв + 55м цокольного приміщення.





