Продаж дуплекса, вул. Грінченка Бориса (№ 22-408-348)
Ціна: 98 000 $

Характеристики
| Ціна: | 98 000 $ |
|---|---|
| № об'єкта: | 22-408-348 |
| Тип: | дуплекс |
| Поверхів: | 3 |
| Спалень: | 3 |
| Площа будинку: | 120 м2 |
| Ділянка: | 5 сот |
| Тип стін: | Газоблок |
| Водовідведення: | Вигрібна яма |
Адреса: Вінницька, Вінниця, Ленінський, Пирогово, Грінченка Бориса
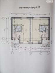
Продається дуплекс в Пирогово 120м2 загальна площа. Власне подвір'я, близько до транспорту.
Зручне планування З поверхи , кухня-студія, 3 спальні , 2 санвузли. Газ, світло, тепла підлога, скважина, вигрібна яма .
Житловий стан частковий ремонт.






















